효당하우징 집짓기

효당하우징과 함께하면 행복한 건축이 됩니다.

설계

기획

기획특가 모델 #06
2019-10-28 22:19
작성자 : 빌더
조회 : 1554
첨부파일 : 9개
 기획특가

 
 구조 : 스틸하우스, 목조주택
 시공면적:105제곱미터 (32평)

마감재
         내부: 내벽-실크벽지/  바닥-강마루 
         외부: 외벽-세라믹사이딩 / 지붕-징크
창: LG 하이샤시
도어/몰딩 : 하늘창
인테리어 :  등박스, 아트월,
서비스: 데크 5평
시공금액 : 1억1천만원
 




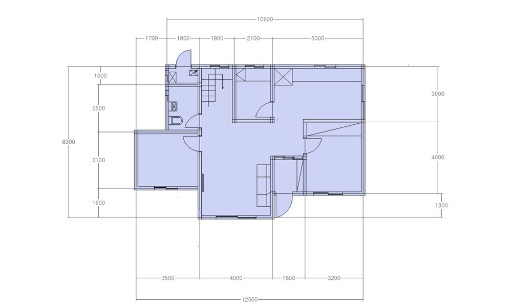
1층평면도

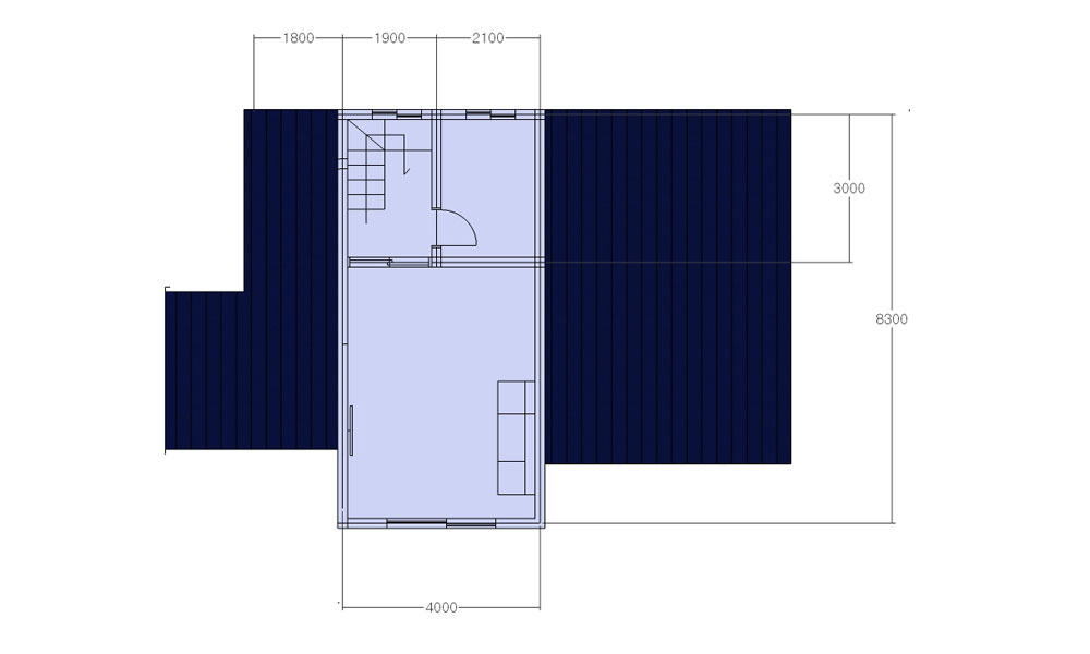
2층평면도

입면도