효당하우징과 함께하면 행복한 건축이 됩니다.
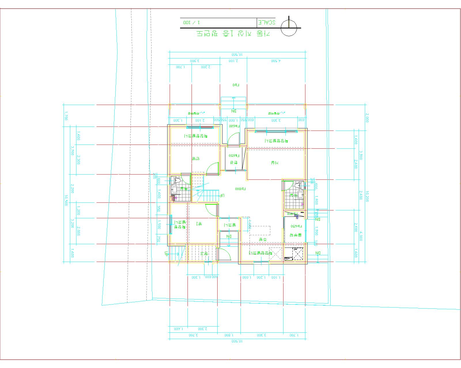
평면도1층 평면도2층 평면도 종합 입면도
효당하우징센터소개 서울 상담센터 서울시 성동구 아차산로 7길 15-1 3층, TEL : 02-701-0411 가평 견본주택 상담센터 경기도 가평군 상면 수목원로 164번길 20, TEL : 010-8900-0482 사업자등록번호 : 215-05-36236 관리 책임자 : 김성기
Copyright @ 2019 by HYO DANG. Co., Ltd. All rights reserved.