효당하우징 집짓기

효당하우징과 함께하면 행복한 건축이 됩니다.

설계

인기

수목원
2019-01-15 20:22
작성자 : 마스터 빌더
조회 : 7553
첨부파일 : 9개
건평 : 28평
외장재 : 지붕:점토기와 / 외벽 : 적벽돌
내장재 : 내벽 : 산호석, 편백루바, 폴리싱타일 / 바닥 : 강화마루
단열 : 유리섬유 벽:R21, 지붕 R32
난방 : 기름보일러 18000
공사금액 : 1억3천
창호 : 하이샤시 이중창 24mm

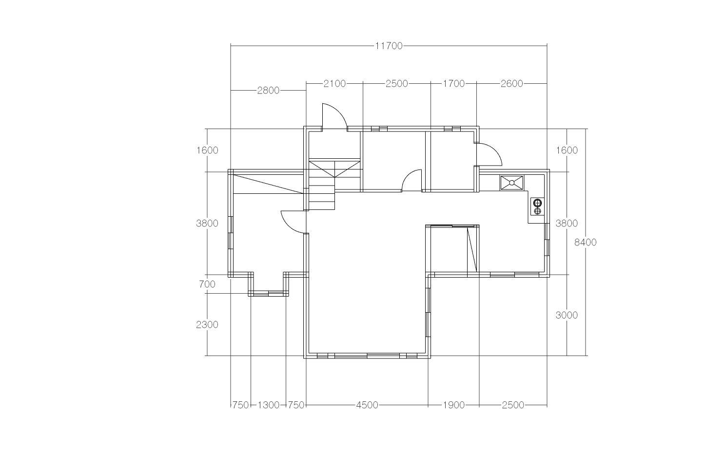
1층평면도


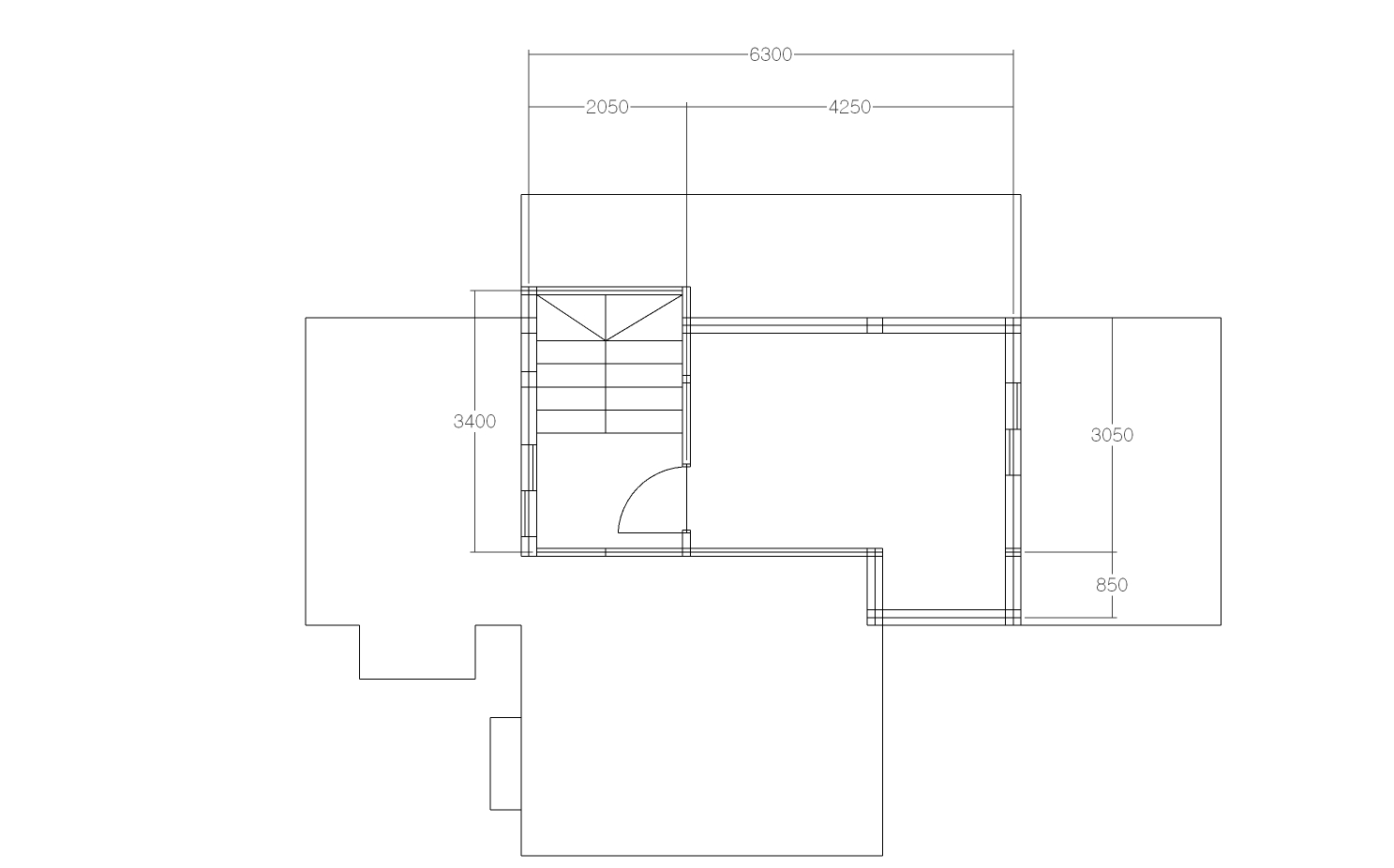
2층평면도



입면도


입면도


골조공사

외부공사

내부공사

완공 후 모습